这座房子的大规模翻新始于撕掉过去100年来所积累的不合格的改造层。该房屋由克雷格-斯蒂利建筑事务所设计,位于旧金山。请跟随休息时间了解更多关于肖恩之家的照片和图纸。
The extensive renovation of this house began by tearing away the layers of substandard remodeling that had accrued over the past 100 years. The home was designed by Craig Steely Architecture and located in San Francisco. Follow the break for more photographs and drawings of the Xiao-Yen’s House.



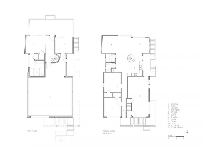
设计要求采用一个现代方案,包括一个更开放的工作和生活计划,一个草皮屋顶,以及一个由钢外骨骼支撑的玻璃顶楼。
The design called for a contemporary program that includes a more open plan for work and living, a sod roof, and a glass penthouse supported by a steel exoskeleton.

钢制外骨骼是抗震升级的一部分,不会将现有建筑拆开。它还支持两层楼的甲板和一包双面太阳能电池板。
The steel exoskeleton is part of a seismic upgrade that doesn't tear the existing building apart. It also supports decks on 2 floors and a pack a bi-facial solar panels.










Architects: Craig Steely Architecture
Area : 1500 m²
Year : 2010
Photographs :Bruce Damonte
City:SAN FRANCISCO
Country:UNITED STATES