阳山大观园建在一块原本被树林覆盖的乡村土地上。该地块被清理出来,并使用加固的土块进行平整。在此之前,这块土地的海拔有4米的倾斜,现在已经达到了一个均匀的高度。阳山全景屋可以俯瞰党村水库,可以看到从公路上看不到的迷人的山景。根据房主的意愿,房子的内部和外部都是用坚固的材料建造的,使其设计相当简单和简约。
The Yangsan Panorama House is built upon a plot of country land that was originally covered with woods. The plot was cleared and leveled using reinforced soil blocks. Prior to this, the land had a 4-meter dip in elevation, which is now at an even height. The Yangsan Panorama House overlooks the Dangchon reservoir and has a stunning view of the mountains, which cannot be seen from the road. According to the owner’s wishes, the interior and exterior of the house were built with solid materials that make for a rather simplistic and minimalist design.







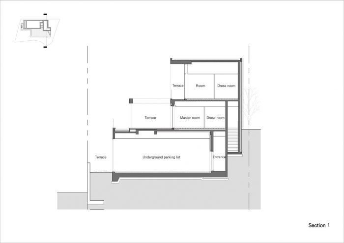
从外面看,阳山全景屋似乎很大很广。然而,令人惊讶的是,除去地下一层,地面总面积不到214平方米。大门可以在地下一层的车道旁找到。从地下一层走上楼梯后,从卧室、客厅和厨房都可以看到党村水库和山脉的全景。在前窗上方,大型混凝土百叶窗从墙上伸出来,长度不一,取决于它们突出在哪个房间。这些百叶窗阻挡了任何来自前阳台和整个一楼的明亮阳光。在二楼,有3间卧室。每间卧室都有一个露台,你可以在那里放松和享受乡村的景色。
From the outside, the Yangsan Panorama House seems large and vast. Surprisingly, however, excluding the underground floor, the total ground area is less than 214m2. The main gate can be found on the underground floor beside the driveway. After walking up the staircase from the underground floor, a panoramic view of the Dangchon reservoir and the mountains can be seen from the bedroom, the living room, and the kitchen. Above the front window, large concrete louvers protrude from the wall in varying lengths, depending on which room they are protruding upon. These louvers block any bright sunshine from the front terrace and the entire first floor. On the second floor, there are 3 bedrooms. Each bedroom has access to a terrace where you can relax and enjoy the countryside view.


两个院子 - 阳山全景屋有两个院子。第一个是一个玻璃窗的院子,从客厅可以看到。这个院子位于客厅和主卧室之间,它增强了客厅的视野。庭院是平坦的,没有树木或树叶,以使从前窗看到的美丽景色不受遮挡。此外,是否可以从百叶窗投下的影子来确定一天中的时间和季节。花园里没有树,但院子里种满了小树和苔藓,以加强在一个精致的空间里的自然感觉。第二个院子是一个小型的三角形院子,就在主卧室的淋浴间外面。这个院子的墙是由混凝土制成的,在保证隐私的同时,还能让人感受到开阔天空下的户外活动。
Two Courtyards - The Yangsan Panorama House has two courtyards. The first is a glass-paned courtyard that is visible from the living room. This courtyard is located between the living room and the main bedroom, and it enhances the views from the living room. The garden is flat and has no trees or foliage order to leave the view of the beautiful scenery from the front window unobscured. In addition, is it possible to determine the time of day and the season from the shadows cast by the louvers. The garden has no trees, but the courtyard is filled with small trees and moss to bolster the feeling of nature in a refined space. The second courtyard is a small, triangular courtyard right outside the main bedroom’s shower. The walls of this courtyard are made of concrete and allow for privacy while still enabling one to feel outdoors under the open sky.





三明治保温、裸露的混凝土和碎石混凝土--业主喜欢混凝土的坚硬、牢固;因此,在建造墙壁时采用了三明治保温裸露混凝土的方法,以确保从房屋的内部和外部都能看到混凝土的暴露。房子被设计成具有不同质地的裸露混凝土,以适应每个区域的特点。首先,紧挨着道路的底层建筑像一个立体板,支撑着整个建筑。这个底层有类似石头的质地,给人一种坚实的印象,这也是业主所希望的。
Sandwich Insulation, Exposed Concrete, and Chipped Concrete - The owner prefers the hard, solid nature of concrete; therefore, the sandwich insulation exposed concrete method was used when constructing the walls to ensure that concrete exposure was visible from both the interior and exterior of the house. The house was designed to have exposed concrete with different textures to fit the characteristics of each area. First, the ground floor next to the road is constructed like a stereobate and supports the whole building. This ground floor has a stone-like texture that gives the house a solid impression, which the owner desired.




底层的混凝土外墙被削掉,使墙面呈现出粗糙的质感。碎裂的混凝土墙面纹理是由手工完成的。建立了一个EPS模具(深度35毫米,宽度20毫米)来固化混凝土,然后用手工进行切割和纹理处理。一楼和二楼的外墙是用板状混凝土制成的,以便在保持混凝土的使用的同时呈现出木纹的质感。内墙使用了原始混凝土,以保持整个建筑的混凝土美感。然而,这种混凝土是高度的,以使混凝土的表面触感光滑。阳山全景住宅的设计采用了各种混凝土纹理,以保持硬朗的美感,而不至于使其过于统一。
The exterior concrete walls of the ground floor were chipped to give a rough texture to the walls. The chipped concrete wall texture was done by hand. An EPS mold (depth 35mm, width 20mm) was built to cure the concrete, which was then chipped and textured manually. The exterior of the first and second floors was made with board-formed concrete in order to give a wood grain texture while simultaneously maintaining the use of concrete. Raw concrete was used for the inside walls to maintain the concrete aesthetic throughout the whole building. However, this concrete was highly in order to make the concrete’s surface smooth to the touch. The Yangsan Panorama house was designed with a variety of concrete textures in order to maintain a hard aesthetic without making it too uniform.



混凝土百叶窗—主卧室、客厅和厨房都有连接的大窗户,可以俯瞰风景,这使得房屋正面的风景如画,一览无余。这是按业主的意愿设计的。面向南方的全景窗户可以创造出令人眼花缭乱的阳光进入屋内。然而,过多的阳光进入房子会让人感到不舒服,所以有必要能够控制通过的阳光量。因此,大型混凝土百叶窗(最大长度为7.5米)被建造在全景窗上方,并与露台的上部相连。这些百叶窗不仅可以控制进入房屋的阳光量,而且还增加了房屋坚硬的混凝土美感,并投下各种阴影。
Concrete Louvers - The main bedroom, living room, and kitchen all have large, connecting windows that overlook the scenery, and this makes for a picturesque, panoramic view from the front of the house. This was designed in accordance with the owner’s wishes. The panoramic windows facing the south can create dazzling displays of sunlight entering the house. However, too much sunshine entering the house could become uncomfortable, so it was necessary to be able to control the amount of sunshine that passes through. Therefore, large concrete louvers (7.5m long at max length) were constructed above the panoramic window and connected to the terrace’s upper part. The louvers not only control the amount of sunlight entering the house, but they also add to the hard, concrete aesthetic of the house and cast a variety of shadows.










Architects: SMxL Architects
Area : 114 m²
Year : 2022
Photographs :Hanbit Kim
Manufacturers : American Standard Korea, Haemil Kitchen Furniture, KIM JONG CHUL TILE, THE JOHN TECH
Lead Architects : Sangmin Lee
Structural Engineer : Archfeel Structural Egineering
Construction : Tae Young Engineering&Constructin
Manager : JeongHoon Shin
Staff : JeongIn Kim
Landscaping : Jogyeongsanghoi
Program / Use / Building Function : Single Family House
City : Yangsan
Country : South Korea