这座一楼的房子在雅加达南部的一个住宅区里占据了一个狭长的场地。虽然从立面看它相当坚固和不寻常,但进入房子时感受到的是一个非常朴实的旅程。木格子天花板允许大量的阳光进入主入口,通过它,会有一个门厅和一个内院在等待。门厅作为一个过渡空间,使外部世界与内部的生活空间变得柔和、模糊。
This one-floor house occupies a long, narrow site in a residential neighborhood in southern Jakarta. Though it is looking rather solid and unusual from the façade, the experience felt when entering the house is intended to be a very down-to-earth journey. The wooden lattice ceiling allows plenty of sunlight into the main entrance, and through it, there will be a foyer and an inner courtyard waiting. The foyer acts as a transitional space that softens and blurs the outside world with the living spaces within.





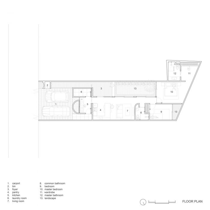
房子的3个主要房间,客厅、餐厅和主卧室,都可以直接看到院子。客厅-餐厅区域被设计成一个开放的平面,用滑动门来鼓励整个空间更好的流通,并延续室内-室外的氛围。因此,在这个相当狭窄的空间里,我们仍然希望这个两口之家能够有一个令人愉悦的空间体验。
The 3 primary rooms of the house, living, dining, and master bedroom, all have a direct view of the courtyard. The living-dining area is designed to have an open plan, with sliding doors to encourage better circulation throughout the space and perpetuate an indoor-outdoor atmosphere. As such, in this rather narrow space, we still want this family of two to have a pleasing spatial experience.

这个房子的所有房间都被设计成直接通风,以最大限度地提高空气流通和自然光的摄入。从立面看到的高高的塔楼不仅为房子增添了特色,而且对于执行洗衣房的烟囱通风(烟囱效应)也至关重要。在半月形的混凝土立面后面,还有一个服务厨房,开着大窗户,让空气循环,释放烹饪的气味。这个坚固的部分挡住了通往街道的视线,给了厨师一种隐私的感觉。空气流通和人的尺度是塑造这个定义空间的两个关键的重要方面。
All rooms in this house are designed to have direct ventilation to maximize air circulation and natural light intake. The tall tower seen from the façade not only adds character to the house but is also crucial to perform the stack ventilation (chimney effect) to the laundry room. Behind the half-moon-shaped concrete façade, there’s also a service kitchen with large windows opening to allow the air to circulate and release the cooking smell. This solid part is blocking the view to the street, giving a sense of privacy to the cook. Air circulation and the human scale are the 2 key important aspects that shape this defined space.



这个房子的设计在很大程度上受到了人们熟悉的半圆形的启发。这在立面的半月形中是很明显的,而且在室内和最终将其联系在一起的家具中也持续不断地被使用。坚实的外观实际上是流动的。不寻常的东西毕竟变成了熟悉的东西。
This house design is very much inspired by the ever-so-familiar semi-circle. This is apparent in the half-moon shape on the façade, and it continues to be persistently used again and again in the interior and the furniture which ultimately ties it all together. The solid looking is actually fluid. The unusual turn out to be familiar after all.












Architects: Isso Architects
Area : 87 m²
Year : 2021
Photographs :Ernest Theofilus
Manufacturers : Atlas Concorde, Blanco, Jotun, Toto, Dekkson Lock, Lemkra, Niro Granite Indonesia
Lead Architect : Wibisono Soegih
Project Team : Stephanie Tatimu, Muhamad Rifsa
General Contractor : Meidi Dwimarditanto
City : Jakarta
Country : Indonesia