约克圣约翰大学(YSJ)的创意中心--由Tate + Co建筑事务所设计--是一座低能耗建筑,为该大学的音乐和计算机科学课程提供了一个永久的新家,为表演、创意写作和媒体制作的学生提供专业空间。
The Creative Centre – designed by Tate + Co Architects – at York St John University (YSJ) is a low-energy building that provides a permanent new home for the University’s music and computer science courses, featuring specialist spaces for performance, creative writing, and media production students.




三个主要概念构成了设计方法的基础,这些概念在新落成的中心中都很明显。首先,它是一个真正的可持续发展的建筑,无论是在运行还是在体现碳方面,都有一个巨大的木质框架和简单的气候控制。其次,主中庭空间将所有的建筑元素结合在一起,反映了高等教育中创造跨学科合作的 "第三空间 "的最新思维。最后,该中心充分利用了其靠近约克大教堂的优势,将大学与周围城市的遗产联系起来。在整个中庭、演奏厅和批判性聆听室中,明斯特的景色都被精心框定,加强了这一令人惊叹的历史遗址的风景。
Three main concepts formed the foundation of the design approach, which are evident in the newly completed Centre. Firstly, it is a genuinely sustainable building, both in operational and embodied carbon terms, with a substantial timber frame and simple climate control. Secondly, the main atrium space unites all the building elements together, reflecting the latest thinking in higher education to create ‘third spaces’ for cross-disciplinary collaboration. Finally, the Centre makes the most of its proximity to York Minster connecting the University to the heritage of the surrounding city. Throughout the atrium, recital hall, and critical listening room, views of the Minster are carefully framed, reinforcing this picturesque view across the stunning historic site.


低碳材料,如胶合板和CLT,被用于该中心的建设,作为建筑师 "结构优先 "方法的一部分;他们采用了Passivhaus原则,在可持续性方面达到了BREEAM优秀等级。与环境设计顾问Atelier Ten合作,该项目通过使用三层玻璃,使建筑密闭,提供简单的操作系统--如可打开的窗户--以及在教学室使用机械和自然通风的混合模式通风系统来实现生态认证。
Low embodied carbon materials, such as glulam and CLT, were used for the construction of the Centre, as part of a ‘fabric-first’ approach from the architects; who have used Passivhaus principles to achieve a BREEAM Excellent rating in terms of sustainability. Working alongside environmental design consultant Atelier Ten, the project’s eco-credentials were achieved by using triple-glazing, making the building airtight, providing simple operation systems – such as openable windows – and a mixed-mode ventilation system with both mechanical and natural ventilation in teaching rooms.


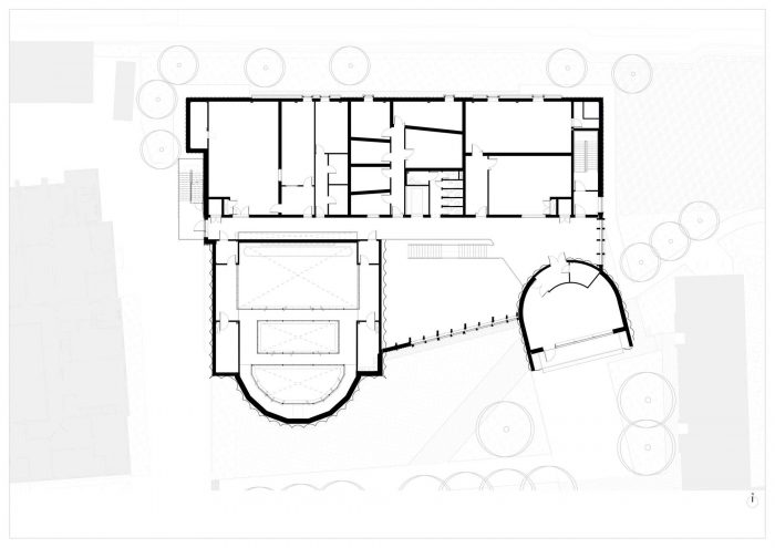
学生社区和协作工作为设计理念提供了基础,2000平方米的灵活教学空间可以适应学生的需求和YSJU动态课程的未来发展;而无柱楼层则允许大量的潜在配置,包括宽阔的空间或更多的单元划分。创意中心的核心是一个有200个座位的礼堂,可以举办学生的现场表演、社区活动和高调的会议。它由预制木材包裹,参考了装饰附近约克大教堂的高而薄的壁龛。
The student community and collaborative working provided the basis of the design concept, with 2,000m2 flexible teaching spaces that can be adapted to suit students’ needs and the future evolution of YSJU’s dynamic curriculum; while column-free floors allow for a great variety of potential configurations, including wide-open spaces or more cellular divisions. The centerpiece of the Creative Centre is a 200-seat auditorium, which can host live performances from students, community events, and high-profile conferences. It is wrapped in prefabricated timber, referencing the tall, thin niches that adorn the nearby York Minster.

一个新的中庭将成为场地的社区中心,拥有550平方米的小组学习和休息空间,将教学区和礼堂连接起来,并促进创意学科之间的交叉融合。玻璃和木质胶合板屋顶将使自然光进入建筑,而中庭将作为一个展览空间、未编排的教学空间和剧院门厅,并有一个新的特色楼梯,提供座位以举办讲座和表演。
A new atrium will become the community heart of the site with 550 m2 of group learning and breakout space, linking the teaching areas with the auditorium and promoting cross-pollination between the creative disciplines. A glass and timber glulam roof will allow natural daylight to enter the building, while the atrium will act as an exhibition space, unprogrammed teaching space, and theatre foyer with a new feature stair that offers seating to host lectures and performances.


该建筑通过使用材料和仔细考虑与周围景观的关系,与自然环境联系起来。整个建筑使用了木材,以帮助形成一个温暖和温馨的氛围,同时在建筑中打出大的空隙,将光线和空气引入不同的空间。一系列相连的路线将新中心与相邻的设计中心连接起来,为大学提供一个综合的、易于浏览的步行街。作为创意中心设计过程的一部分,建筑师和景观设计师为Lord Mayor's Walk校区制定了一个以景观为主导的总体规划,以确保真正改善学生的体验。
The building connects to the natural environment through its use of materials and a carefully-considered relationship to the surrounding landscape. Timber has been used throughout to help develop a warm and welcoming atmosphere, while large voids have been punched through the building to bring light and air into different spaces. A series of connected routes link the new Centre to the adjacent Design Centre, providing an integrated, easy-to-navigate pedestrianized street for the University. As part of the Creative Centre design process, the architects and landscape architects created a landscape-led master plan for the Lord Mayor’s Walk Campus to ensure a genuinely improved student experience.

























Architects:Tate + Co
Area : 3014 m²
Year : 2022
Photographs :Hufton+Crow
Manufacturers : AutoDesk, Altro, Interface, Russwood, Silent Gliss, Solus Ceramics, Velfac, British Gypsum, Forbo Flooring, Mosa Tiles, Shadbolt International, Whitesales Rooflights
Structural Engineer : Atelier One
Acoustic Consultants : Sound Space Vision
Landscape Architects : Colour
Planning Consultant : McKenzie Town Planning
Main Contractor : Kier
Project Architect : Andrew Baker-Falkner
Design Team : Eduardo Andreu González, Rob Baron, Amir Daryoushnezhad, Finbarr Duerden, Caroline Dunham, Rory Harmer, Jolene Hor, Qaisy Jaslenda, Iaia Loppi, Amber McLaren, Simon Munashe Dendere, Laurence Pinn, Ed Rawle, Mohammed Syafiq B Hassan Jubri, Tristan Searight, Jerry Tate
Glulam And Clt Sub Contractor : Glulam Solutions
Timber Cladding Sub Contractor : BCL Timber
Client : York St John University
Project Managers And Quantity Surveyors : MCAG RLF
M&E Engineers : Atelier Ten
Breeam Consultant : Atelier Ten
Lighting Designer : Atelier Ten
Access Consultants : Sensory Trust
City : York
Country : United Kingdom