Yun Pangyo "有两个侧面平行对称地运行在一起。场景由两个外墙组成,长度像一个长的矩形,设计简单。虽然有些人可能觉得大面积的曝光有很多好处,但我们认为,由于运动和注意力的分散,在品牌故事和运营方向的声音展示方面,缺点多于优点。如何在空间建设方面克服这一缺点,让顾客在购买我们的产品时感受到 "云 "的身份,是我们遇到的另一个任务。
‘Yun Pangyo’ has two sides running together symmetrically in parallel. The scene consists of the two facades running the length like a long rectangle in a simple design. While some may feel that there are many advantages to be gained from exposure to the large area, we believe that there are more drawbacks than advantages in the sound demonstration of the brand story and operational directions due to the dispersal of movement and attention. It was one of the other missions that we encountered to overcome this drawback in terms of the construction of space and to have our customers feel the ‘Yun’ identity while making purchases of our products.


我们从韩国传统的墙体中找到了表达 "云 "的核心概念和克服这些弊端的线索。传统的韩国房屋使用支柱和水平角撑来完全包括周围的景色,努力拥抱自然,这显示了韩国人过去对自然的态度。外墙是为了补充房屋的缺点,而这些也是为了适应周围的地形和景观。此外,围墙不仅是内部和外部的界限,也是修改围墙外景色的画框。这也是一个从外面到里面的微妙沟通的边界,或者说是反向的。
We found the clue for the expression of the core concepts of ‘Yun,’ and for the overcoming of these drawbacks from traditional Korean walls. The traditional Korean house uses the pillars and horizontal angle brace to wholly include the surrounding scenery in the effort to embrace nature, and this shows the Korean attitude towards nature in the past. The outer walls were meant to complement the drawbacks of the houses, and these were also meant to accommodate the surrounding terrain and landscape. Furthermore, the walls not only act as a boundary between the inside and the outside but also as a picture frame that modifies the view beyond the fences. It was also a boundary for subtle communication from the outside to the inside, or in reverse.



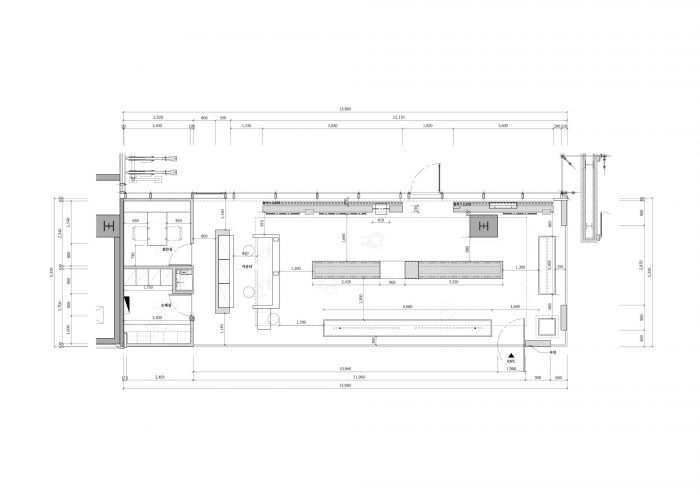
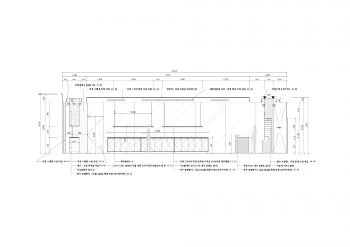
仿佛是为了适应周围的空间,"Yun Pangyo "包括3面不同形式和大小的墙。通过这些墙,外墙从两边显示出不同的外观。顾客进入后,在两面墙之间走过一条狭窄的小路,并通过越过墙,走在一条不同外观的路上来检查眼镜。我们觉得这个与顾客在一起的场景反映了 "云 "的身份,抓住了韩国人的感觉。
As if to accommodate the surrounding space, ‘Yun Pangyo’ includes 3 walls of different forms and sizes. Through these walls, the facades show different appearances from both sides. The customer enters and walks a narrow path between the two walls, and examines spectacles by crossing the wall and walking on a path of a different appearance. We feel that this scene with the customer reflects the ‘Yun’ identity that captures the Korean feeling.


Yun "讲的是日常生活,因此与近年来具有华丽和挑衅性产品的品牌分开了道路。尽管如此,"Yun "在其行动中成功地抓住了人们的思想和情感。目前,"云 "正在逐层积累其品牌理念的成果,我们敢于预测,随着经验的不断积累,我们理念的真正价值将变得更加明显。我们很感激能够作为一个整体参与到这个缓慢而稳定的积累中,并希望通过稳定的积累,我们能够保持一个长寿的品牌。
‘Yun’ speaks of everyday life, and therefore parts paths from brands with gaudy and provocative products of recent years. Despite this, ‘Yun’ in its moves manages to capture the minds and emotions of people. ‘Yun’ is currently accumulating results with its brand philosophy layer by layer, and we dare to predict that the true values of our philosophy will become ever more noticeable as a result of the continuous accumulation of experience. We are grateful to be able to participate as one piece in the slow but steady accumulation and hope that we will remain a brand of longevity through steady accumulation.

















Architects: By Seog Be Seog
Area : 82 m²
Year : 2022
Photographs :Kim Donggyu
Spatial Design : Youngsung Shin, Miyoung Kim, Seohee Jang
City : Seongnam
Country : South Korea