起初,在布拉迪斯拉发的郊区有一块大的地皮,可以俯瞰森林。还有一个正在成长的大家庭,他们希望住在砖房里。然而,该地块的方向是困难的,因为新的家庭房屋在附近迅速成长起来。因此,出现了三个巨大的房子,通过明亮、透明的空间相互连接的想法。这样,阳光和日光就能照射到所有的房间,即使房子位于建筑区,家人也会有一种隐私感。
At the beginning there was a large plot on the outskirts of Bratislava, overlooking the forest. And also a large, growing family, with a desire to live in a brick house. However, the orientation of the plot was difficult, with new family houses quickly growing up in the neighbourhood. So the idea of three massive houses, interconnected by light, transparent spaces, arose. Thus, the sun and daylight will reach all the rooms, and the family will have a sense of privacy, even if the house stands in a built-up area.



砖砌的房子在我国有悠久的传统,我们很熟悉,很容易就能习惯。在这种情况下,我们将烧焦的砖与对比鲜明的光滑表面结合起来,让其独特的纹理脱颖而出。外墙的砖块,阳台铺面的砖块,反射在镜子里的砖块,窗台和房屋内部的砖块。拱门上的砖块,建筑开口处作为半透明帘子的砖块。砖允许我们进行实验,并以多种方式使用它。
Houses made of brickwork have a long tradition in our country, they are familiar to us and we can easily get used to them. In this case, we combine the burnt brick with contrasting, smooth surfaces, letting its unique texture stand out. Bricks on the façade, bricks on the pavement of terraces, bricks reflected in the mirror, bricks on the windowsills and in the interior of the house. Bricks in the arch, bricks as a semi-transparent curtain in building openings. Brick allows us to experiment and use it in many ways.


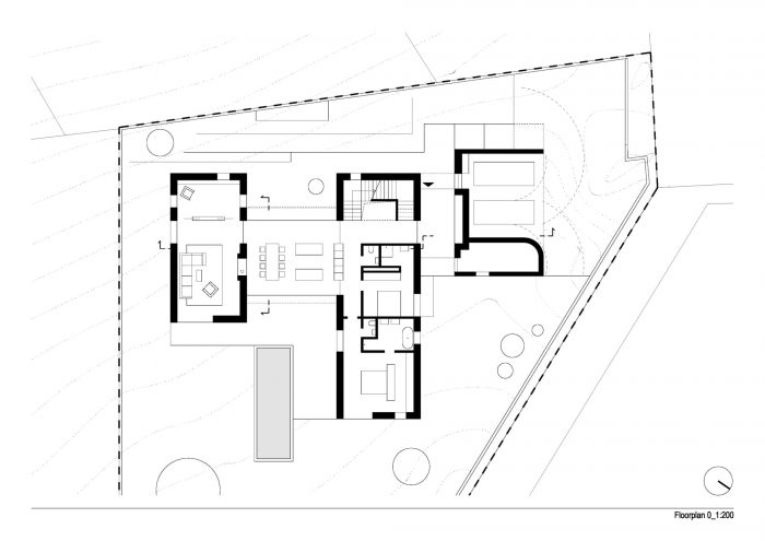
三座巨大的、用砖砌成的房子占据了各种程序。在最大的两层楼里,我们放置了一个私人区域--卧室和儿童房。宽敞的楼梯有充足的日光和经过深思熟虑的窗户,为花园提供了轴向的视野。中等规模的房子由一个带双面壁炉的客厅和一个部分分离的图书馆组成。起居室被抬高,通过天花板下的条形玻璃让阳光从西南方向照射进来。最小的房子矗立在小区的入口处,为汽车和花园服务创造了一个场所。
Three massive, brick-built houses take over various programs. In the largest, two-storey, we place a private zone - bedrooms and children's rooms. The spacious staircase has plenty of daylight and thoughtfully placed windows, providing axial views to the garden. The medium-sized house consists of a living room with a double-sided fireplace and a partially separated library. The living room is elevated to let in the sun from the south-west through strip glazing under the ceiling. The smallest house stands at the entrance to the plot and creates a place for cars and garden service.



在这些砖房中,我们插入了明亮的玻璃空间,总是可以从两边进入。较小的房子构成了入口大厅,较大的房子是一个六口之家的主要生活空间--一个带有餐厅和壁炉的厨房。这里的生活中心是一张大餐桌和两个厨房岛。由于这种非标准的厨房布局,父母在做饭时可以更好地看到房子的两边--东北方向的游泳池,但也可以看到西南方向的小阳台。
Among the brick houses we insert light, glazed spaces, always accessible from both sides. The smaller one forms the entrance hall, and the larger one houses the main living space for a family of six - a kitchen with a dining room and a fireplace. The center of life here is a large dining table and two kitchen islands. Thanks to this non-standard kitchen layout, parents will have a better view of both sides of the property while cooking - to the northeast towards the pool, but also to the smaller southwest terrace.


窗户在实墙中的位置是经过深思熟虑的,我们把它们放在这里就像画一样。另一方面,玻璃空间是轻盈、开放的结构,混凝土横梁的天花板顺利地过渡到外面。一条轴线贯穿整个房子,连接所有的空间,可以看到花园的美丽景色。
The positions of the windows in the solid walls are well thought out, we place them here like paintings. The glazed spaces, on the other hand, are light, open structures with concrete beamed ceilings that smoothly transition into the outside. A single axis stretches through the entire house, linking all the spaces, with a beautiful view of the garden.


外墙由砖块、矿棉保温层和通风气隙组成。外墙是由比利时的Marziale面砖制成。所有的钢筋混凝土天花板都集成了一个冷却系统。结合热泵、空气回收和利用水井满足花园的需要,我们创造了一个生态建筑,可持续发展和环境友好。
The external walls consist of brick, a thermal insulation layer of mineral wool and a ventilated air gap. The façade is made of Belgian Marziale face brick. All reinforced concrete ceilings integrate a cooling system. Combined with a heat pump, air recovery and the use of a well for garden needs, we create an ecological building, sustainable and environmentally friendly.



















Architects: ARCHITEKTI mikulaj & mikulajova
Area: 358 m²
Year: 2023
Photographs:Matej Hakár
Manufacturers: Laufen, Agape, Astro Lighting, Bega, Blinds and curtains, Cesi, Classicon, FLOS, Fabrick, Homola Furniture, Jalousie, Janosik okna a dvere, Mutina, Steinberg, Wever & Ducré Lightning
Lead Architects: Juraj Mikulaj, Andrea Ambrovicova Mikulajova
Landscape Architects: Atelier DIVO
Structure Engineer: Ing. Frantisek Hladky
Lighting Designers: The Light
Design Team Members: Jana Machalova, Tomas Chovanec
Program / Use / Building Function: Family house
City: Záhorská Bystrica
Country: Slovakia