这座带有阁楼和小地窖的简单村舍矗立在兹布拉斯拉夫东南的Baně定居点的一个角落里。它的命运受到了一场火灾的影响,主要是天花板和屋顶受到了不可修复的破坏。房子的新主人是一对有两个孩子的夫妇,他们希望重建房子,增加一个更大的车库并重新设计花园。
This simple village house with an attic and a small cellar stands in the middle of a corner plot in the settlement of Baně, southeast of Zbraslav. Its fate was affected by a fire that irreparably damaged mainly the ceilings and the roof. The new owners of the house were a married couple with two children who wished to reconstruct the house, add a larger garage and redesign the garden.




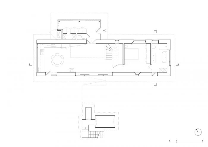
拟议的改建尊重了房子的原始体积和占地面积。周围的花园也发生了很大的变化,可以通过房子的新开口和通道来观看。房子通过一个玻璃前庭和露台延伸到花园里。另一方面,新的混凝土车库隐藏在地块角落的地下,从房子里根本看不到。因此,车库在花园中创造了一个平缓的绿色斜坡,并使其面积最大化。
The proposed alterations respect the original volume of the house and its footprint. The surrounding garden has also undergone a significant transformation and can be viewed through new openings and passages of the house. The house is extended into the garden by a glazed vestibule and terrace. On the other hand, the new concrete garage is hidden under the ground in the corner of the lot and is not visible from the house at all. The garage thus creates a gentle green slope in the garden and maximizes its area.


在房子的中心是一个宽敞的生活空间,向屋顶开放。它与餐厅和厨房相连,可以看到邻居的柳树和周围房屋的屋顶的美丽景色。在楼梯后面,在房子的更私人的部分,有一个卧室和一个浴室。
At the heart of the house is a generous living space open to the roof. It is connected to the dining room and kitchen with a beautiful view of the neighbor‘s willows and the rooftops of the surrounding houses. Behind the staircase, in the more private part of the house, there is a bedroom and a bathroom.

阁楼上的长廊可以作为带学习区的图书馆,游戏室,或练习瑜伽的地方。画廊通向两间卧室和一个小浴室。阁楼上的房间由一个条形天窗照亮,使业主可以观看天空;例如,在他们的床上睡着时。
The gallery in the attic serves as a library with a study area, a playroom, or a place to practice yoga. The gallery leads to two bedrooms and a small bathroom. Rooms in the attic are illuminated by a strip skylight that allows the owners to watch the sky; e.g. from their bed when falling asleep.


这座房子外表简朴,内部空间和材料都很丰富。最令人印象深刻的特点是天花板和屋顶桁架的新结构。一楼的房间以钢筋混凝土天花板为主,其各个肋骨的截面呈三角形。薄钢领梁是回收的屋顶桁架的结构组成部分。
Modest on the outside, the house is rich inside both in space and materials. The most impressive feature is the new construction of the ceilings and roof trusses. The rooms on the ground floor are dominated by reinforced concrete ceilings, whose individual ribs are triangular in cross-section. Thin steel collar beams are a structural component of the recycled roof truss.

它们塑造了阁楼的空间,也起到了遮阳的作用。室内的粗糙和粗糙的材料与精确和精致的细节交替出现。各个空间的特点被精致的窗帘和日常物品的色彩所补充。
They shape the loft space and also act as shades. The rawness and rough materials in the interior alternate with precision and elaborate details. The character of the individual spaces is complemented by delicate draperies and the colorfulness of everyday objects.






















Architects: Martin Neruda Architektura
Area : 200 m²
Year : 2021
Photographs :Alex Shoots Buildings
Lead Architects : Martin Neruda
Collaboration : Petr Hanzal
Main Supplier : Stavitelství Klus, s.r.o.
Garden : Lada Piskáčková
Woodworks : Jan Kořínek
City : Zbraslav
Country : Czech Republic