这套房子是沿着房产开发的,分为两个相互垂直的独立单元,以实现每个空间更好的私密性、照明和阳光;反过来,在结构设计下实现了从基础、嵌入板和明显的混凝土卡特尔的完全自由表面的单元。随着这些元素的整合,提出了一套整体的表面处理,以同样的方式与暴露的设施相连接。
The set was developed along the property in two independent units perpendicular to each other to achieve better privacy, lighting and sunlight of each space; achieving in turn, units of totally free surfaces under the structural design from the foundation, embedded slabs and apparent concrete cartels. With the integration of these elements, a set with apparent finishes in its entirety is proposed, linking in the same way with the exposed facilities.



这套建筑在内部和外部都保持着同质化的形象。在主立面,一个特殊比例的砖幕被整合到其操作中,它被用于整个建筑,其流动性允许控制太阳入射。
The set is maintained with a homogeneous image both inside and outside. In the main facade, a brick curtain of special proportions is integrated for its operation, which is used throughout the whole, with a mobility that allows the control of the solar incidence.

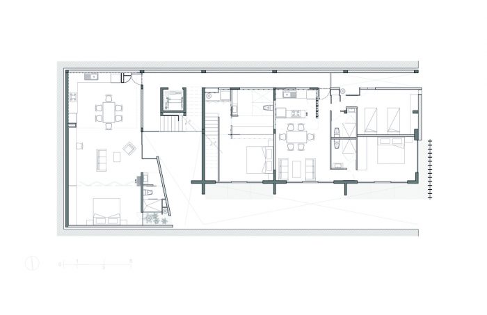
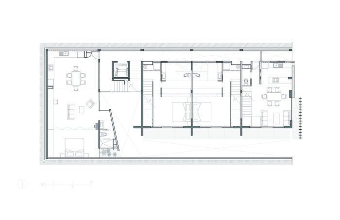
在各部门的自由楼层中,私人空间通过玻璃屏幕和铁制品、木工元素、壁橱和书架分布;从而允许100%的生活表面形成,产生多功能性,以创造一个更个性化的使用空间。
In the free floor by department private spaces are distributed through glass screens and ironwork, carpentry elements, closets and bookshelves; thus allowing 100% living the surface that forms it, generating versatility to create a space of more personalized uses.

内部和外部的整体形象被概念化,表达了简单和清洁的标准,以产生一个友好的空间,与环境休闲,与内部住宅的多样性一起,表示一个实用和简单的住房生活。
The image of the whole both inside and outside was conceptualized with a criterion that expressed simplicity and cleanliness in order to generate a friendly space, casual with the environment and that together with the diversity of the homes inside, denote a practical and simple housing to live.
















Architects: GDE Grupo Diseño y Espacios
Area : 1253 m²
Year : 2018
Photographs :Angelica Ibarra
Manufacturers : MDC
City:MEXICO CITY
Country:Mexico