激进的塔布拉拉萨
2006年,根据荷兰最大的建筑公司Vestia的谈判程序,Kempe Thill工作室被委托设计位于海牙Moerwijk社区的10号街区,包括88套公寓和27座排屋。
Radical Tabula Rasa
In 2006, Atelier Kempe Thill is commissioned to design Block 10 in the Moerwijk neighborhood of The Hague with eighty-eight apartments and twenty-seven terraced houses as the result of a negotiation procedure by Vestia, the largest building corporation in the Netherlands.



Moerwijk是一个典型的重组区,有1960年代的住宅楼,在荷兰的许多大城市也有。同样在这里,城市和住房公司同意全面拆除整个地区,而不是对现有建筑进行翻新。
Moerwijk is a typical restructuring area with residential buildings from the nineteen-sixties, as also exist in many large cities in the Netherlands. Also here, the city and housing corporations agreed on the comprehensive demolition of the entire area rather than renovation of the existing buildings.

KCAP公司受委托负责制定新的城市发展规划,其项目从根本上说是基于现有的街道和街区结构。与大多数类似的规划情况不同的是,由于新的必要的基础设施,不可能改变街道网格,以及这样一个大规模的行动必须以150至250个住宅的小步骤实现的事实。由于这个原因,新的开发项目几乎完全遵守旧的建筑地段,但有一个实质性的区别:建筑的深度从9米增加到大约13米,并且创造了一个新的公寓和梯形房屋的组合,以取代原来的开发项目,完全由公寓组成。因此,公寓站在该地区的边缘,形成了 "城市边界",而排屋则位于网格的内部,更为亲切。
Commissioned to create the new urban development plan required was the firm KCAP, whose project is fundamentally based on the existing street and block structure. What is distinguishing here—as in the majority of comparable planning situations—is the fact that it is not possible to change the street grid due to the new necessary infrastructure, as well as the fact that such a large-scale operation would have to be realized in smaller steps of 150 to 250 residences. For this reason, the new development adheres nearly exactly to the old building lots, but with a substantial difference: the depth of the buildings has been increased from nine meters to approximately thirteen, and a new mix of apartments and terraced houses is created in place of the original development, consisting exclusively of apartments. The apartments thus stand on the edge of the area and form an “urban border,” while the terraced houses are located in the more intimate interior of the grid.

KCAP最初设想在该地区的中心地带保留两座三层楼的公寓楼,作为Willem Marinus Dudok最初城市开发计划的见证。根据住房公司进行的可行性研究,这最后两座建筑最终也被批准拆除。如果进行适当的改造,将公寓结合起来,以及相应的声学和能源效率,将超过最大预算。地面规划和建筑结构也不适合于计划中的改变。
KCAP originally envisioned retaining two of the three-story apartment blocks in the heart of the area as a witness to the original urban development plan of Willem Marinus Dudok. Based upon feasibility studies conducted by the housing corporation, these last two structures were, however, also approved for demolition in the end. Suitable renovation with the combining of apartments as well as the corresponding acoustics and energy efficiency would have exceeded the maximum budget. The ground plan and the building structure were also not appropriate for the planned changes.

令人印象深刻的庭院种植和街道上精心布置的树木(盛开的观赏性树种)也都被推土机牺牲了,因此,50年后,一切几乎都是在一贯的白纸黑字的基础上从头开始的,而且确实对荷兰典型的处女地、裸露的沙地很着迷,在那里人们能够梦想出新的建筑,就像生活的新开始。
The impressive planting of the courtyards and the carefully composed trees on the streets (magnificently blooming ornamental species) were also sacrificed to the bulldozer, so that after fifty years everything was virtually started again from scratch on the basis of a consistent tabula rasa—and indeed with the fascination for the virgin, bare sand area that is so typical for the Netherlands, and in which one is able to dream up new buildings like a new beginning of life.

此外,令人瞩目的是这种大规模行动的经济逻辑,它最终使荷兰目前的整个住宅建筑的生产看起来像是一种奢侈的增加。只有当大约两倍的生活空间被再次建立起来时,这样的操作才是可行的。然而,最后,尽管面积增加了一倍,但只能建造与以前相同数量的住宅。此外,与五十年前相比,大约只有一半的人将住在这些新公寓里。
What is moreover remarkable is the economic logic of such a large-scale operation, which ultimately makes the entire current production of residential buildings in the Netherlands seem like an increase in luxury. Such an operation is only then feasible when approximately two times the amount of living space is built up once again. Finally, however, only the same number of residences as before will be built despite a doubling of the area. In addition, approximately only half the number of people will live in these new apartments compared to fifty years ago.

一个没有集体性的集体
KCAP对10号街区的新设计是指沿Erasmusweg(通往海牙市中心的主要街道)的公寓开发,以及位于公寓后面的梯形房屋开发区域。沿着Erasmusweg的建筑是对周边地区的噪音屏障,同时也是城市的边界。
A Collective without Collectiveness
The new design for Block 10 is conceived by KCAP as meaning an apartment development along Erasmusweg, which is the main street leading to downtown The Hague, and also an area of terraced-house development situated behind the apartments. The buildings along Erasmusweg serve as a noise barrier for the surrounding area to the back while also functioning as a city boundary.

根据Atelier Kempe Thill对公寓所需的停车空间和存储空间的分析,这些空间也应位于底层,很明显,有必要假设两栋楼之间的空间将被完全填充为停车空间。由于地下水位较高,建造一个地下停车场是不经济的。作为一个替代方案(与阿姆斯特丹-奥斯多普的住宅建筑项目类似),Atelier Kempe Thill建议用一个绿色的屋顶平台来覆盖停车空间,它设想作为邻近公寓的露台,以及一个公共区域,让孩子们有机会玩。为了使车库能够自然通风,计划在平台上开出大量的开口。因此,从头开始建造这样一个大型的住宅综合体,为创造一个宽敞的、集体的内院提供了机会。
According to Atelier Kempe Thill’s analysis regarding both the required parking space and storage space for the apartments, which should also be situated on the ground floor, it becomes clear that it would be necessary to assume that the space between the two buildings would be filled completely with parking space. Building an underground parking garage would be uneconomical due to the high water table. As an alternative (and similar to the residential building project in Amsterdam-Osdorp), Atelier Kempe Thill proposes covering the parking space with a green roof deck, which it envisiones as a terrace for neighboring apartments as well as a communal area with opportunities for children to be able to play. Generous openings in the deck are planned in order to make it possible to ventilate the garage naturally. Building such a large residential complex from scratch thus offers the chance to create a generous, collective inner courtyard.

Atelier Kempe Thill与住房公司进行的关于这个想法的讨论值得注意。在与Vestia的会谈中,我们很快就会发现,梯形房屋与公寓的结合会导致居民之间的社会差异,这将使院子的任何共同使用变得不可想象。Vestia认为,已经实现富裕的第二代和第三代土耳其和摩洛哥移民会住在排屋里,来自土耳其和摩洛哥的第一代大家庭可能会住在有补贴的小别墅公寓里,而退休的荷兰公民会更喜欢上层楼房。根据这一评估,没有一个目标群体会对与其他群体共享一个院子感兴趣。因此,所期望的设计是在保证视觉上的宽松一致性的同时,在空间上明确地将两部分的居民分开,因为根据猜想,他们否则只会互相干扰。
The discussions regarding this idea that Atelier Kempe Thill conducts with the housing corporation are worth noting. It quickly becomes clear in the meetings with Vestia that the combination of terraced houses with apartments would lead to social differences between the residents, which would make any shared use of the courtyard inconceivable. Vestia is of the opinion that second- and third-generation Turkish and Moroccan immigrants who have achieved prosperity would live in the terraced houses, that large, first generation families from Turkey and Morocco would probably live in the subsidized maisonette apartments, and that retired Dutch citizens would prefer the upper floors. According to this assessment, none of the target groups would be interested in sharing a single courtyard with the others. The design desired is thus one that guaranteed a generous coherence optically while clearly separating the residents of the two sections spatially, since they would otherwise—according to the conjecture—only disturb each other.

通道阳台 遗迹 通道阳台
荷兰十九世纪六十年代和七十年代初的住宅开发,例如阿姆斯特丹著名的Bijlmermeer,大多以长的、无名的阳台为特征,用于进入各个住宅。这种形式的通道是迄今为止最经济的,因为预制混凝土板形式的通道只需要悬挂在建筑结构的外部,而实际上并不属于孤立的建筑结构的一部分。
Access balcony Remains Access balcony
Residential housing development in the Netherlands in the nineteen-sixties and early seventies, for instance the well-known Bijlmermeer in Amsterdam, is mostly characterized by long, anonymous balconies for accessing the individual residences. This form of access is by far the most economical since the passageway in the form of a prefabricated slab of concrete need only be suspended on the exterior of the building structure without actually being part of the isolated building structure.

由于通道阳台的匿名性和居民在到达电梯或楼梯前完全暴露在天气中的事实,通道阳台是--特别是当它相当长时--对晚期现代主义住宅建筑的主要批评。Atelier Kempe Thill以这种意识开始了新公寓楼的设计工作,并提出了各种两层楼的公寓类型和其他形式的通道。然而,住房公司得出的结论是只需要一层楼的公寓。两层楼的小公寓需要减少到绝对的最低限度,因为这个目标群体会与退休的荷兰居民发生冲突,他们必须习惯于年老和体弱。一层楼的公寓,按照定义是可以让轮椅进入的,但在给定的情况下,只能通过一个通道阳台进入,这自动导致了建筑类型几乎与60年代被严厉批评的建筑类型完全一样。尽管如此,这种情况还是被接受了。为了从社会和建筑上提升通道阳台,Atelier Kempe Thill建议通过在一定程度上扩大通道,将公寓的实际阳台直接与通道结合起来。这种组合在为 "55岁以上 "的一代人设计的公寓中尤其受到赞赏,因为它有利于更多的社会接触。
Due to the anonymity of an access balcony and the fact that the residents are completely exposed to the weather before reaching the elevator or stairway, the access balcony is—especially when it is quite long—one of the main criticisms expressed with respect to the residential building architecture of late modernism. Atelier Kempe Thill begins its work on the design of the new apartment building with this awareness and proposed various two-story apartment typologies with other forms of access. The housing corporation, however, come to the conclusion that only one-story apartments are desired. Two-story maisonette apartments need be reduced to the absolute minimum since this target group would clash with the retired Dutch residents, who must become accustomed to old age and infirmity. One-story apartments, which are per definition wheelchair-accessible, could, however, only be accessed in the given situation by means of an access balcony, which automatically results in a building typology that is nearly exactly the same as that which was so severely criticized in the sixties. This situation was, nevertheless, accepted. In order to upgrade the access balcony socially and architecturally, Atelier Kempe Thill proposes combining the actual balconies of the apartments directly with the access by enlarging it to some extent. This combination is particularly appreciated in the case of apartments for the “55 plus” generation since it facilitates more social contact.

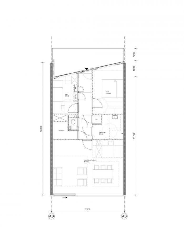
全景式或门式公寓
住房公司所期望的标准公寓的面积相当于95平方米,有两个卧室。建筑轴线之间的尺寸使公寓和停车场能够相互协调,包括7.2米。几乎所有房间的内部尺寸,直到水槽等的位置,都是由Woonkeur认证系统精确定义的,这通常适用于荷兰的补贴性住房建设。在这个基本规划中,只有两种可能的公寓布局,几乎是自动驾驶的:第一种是门式布局,客厅横跨建筑,每个立面都有一间卧室。第二种方案是全景式布局,其中客厅完全占据了一侧,而另一侧则被两间卧室占据。在这里,Vestia决定采用全景式变体,它为建筑提供了一个宽敞的起居室,并能看到公园般的Erasmusweg及其溪流的景色。这个星座使我们有可能为所有的起居室设计一个玻璃幕墙,它跨越了整个楼层的高度,有4.5米宽的固定玻璃和一个2.5米宽的滑动窗。转角公寓的客厅被赋予了玻璃,它延伸到了转角处。所有的玻璃制品都在一定程度上延伸到顶部楼层的天花板上,这意味着窗帘可以挂在形成的间隙中。为了实现室内向外的全面视觉开放,底部以及两侧的窗户连接被最小化。尽管预算框架有限,但面向通道阳台一侧的卧室也可以提供宽敞的窗户。
Panoramawoning or Doorzonwoning
The apartment size for the standard apartments desired by the housing corporation equates to ninety-five square meters with two bedrooms. The dimension between construction axes that allows the apartments and the parking garage to be coordinated with each other consists of 7.2 meters. Almost all interior dimensions of the rooms, up to the positions of sinks and the like, are precisely defined by the Woonkeur certification system, which generally applies to subsidized housing construction in the Netherlands. Within this basic plan, only two possible apartment layouts arise, quasi in autopilot: first, the doorzonwoning with the living room traversing the building with one bedroom on each façade. The second option is the panoramawoning, in which the living room completely takes up one side while the other side is occupied by the two bedrooms. Here, Vestia decides on the panorama variant, which provides the building with a generous living room and a view of the park-like Erasmusweg with its stream. This constellation made it possible to design a glass façade for all of the living rooms that spans the complete height of the floor with 4.5-meter-wide fixed glazing and a 2.5-meter-wide sliding window. The corner apartments have been given glazing in the living room, which extends around the corner. All of the glasswork extends somewhat over the ceilings of the floors at the top, which means that curtains can be hung in the interstice that is created. The window connections are minimized at the bottom as well as on the sides in order to achieve a comprehensive visual opening of the interior toward the outside. The bedrooms facing the side where the access balcony is located can also be provided with generous windows despite the restricted budgetary framework.

"金色公寓"
建筑群的外部外观是由外立面所有金属建筑元素的微妙的金色 "香槟 "色调决定的,这也是为了与海牙其他住宅区的氛围形成一种联系。铝窗框和挤压盖板以及细波纹金属板都采用了微妙的金色。这样做的目的是为了给建筑群带来一丝不显眼的贵族气息,并有意识地打破社会住房建设不仅要便宜而且要看起来便宜的偏见。这种效果在上层外墙尤其重要,由于有限的财政框架只允许有几个窗户,因此相当封闭。
“Golden Flat”
The outer appearance of the building complex is defined by the subtle, golden “champagne” hue of all metal construction elements in the external façade, which also strives to form a connection with the atmosphere of other residential areas in The Hague. The aluminum window frames and extruded cover plates as well as the fine-ribbed corrugated sheet metal are executed in a subtle gold color. The goal in doing so is to lend the building complex a discrete touch of nobility and to consciously break the stigma that social housing construction not only has to be cheap but also has to look cheap. This effect is particularly important on the upper façade, which due to the limited financial framework only allows for a few windows and is thus rather closed.

在分别面向Erasmusweg和Wildenborghstraat的两个主要立面上,玻璃占据了立面的主导地位。这使该建筑群在外部具有明显的公共特征,而卧室在内部则具有私人特征。大面积的玻璃窗与建筑的整体尺寸有一个和谐的关系,这意味着它的整体规模很容易被观众所理解。
On the two main façades facing Erasmusweg and Wildenborghstraat respectively, the glazing dominates the façade. This gives the complex a distinctly public character toward the outside, while the bedrooms characterize the private character toward the inside. The large window glazing has a harmonious relationship to the overall size of the building, which means that its overall scale can easily be comprehended by viewers.

两个外墙的细节设计代表了阿姆斯特丹-奥斯多普和兹沃勒项目的进一步发展和完善。这种情况特别值得注意,因为沿着Erasmusweg的立面可以实现非常大的声音降低,包括超过28分贝,这种情况反映了对所有型材、连接和玻璃的高度要求。
The detailing of the two façades represents a further development and refining of the projects in Amsterdam-Osdorp and Zwolle. This situation is particularly noteworthy since it was possible to achieve a very large reduction in sound comprising more than twenty-eight decibels as a result of the façade along Erasmusweg, a situation that reflects heightened requirements for all the profiles, connections, and the glass.

这里的玻璃尺寸比以前的项目更大,窗框之间的覆盖物更窄--目的是使窗格以及整个建筑看起来更宽大。这里的覆盖物不再是平面的,而是由专门为该项目制作的挤压铝型材组成,以便在每个细节上创造出更紧致的形象。为了使建筑更加轻盈,角窗的窗格没有角部轮廓,只是用胶粘住。
The dimensions of the glazing are even larger here than in the previous projects and the coverings between the window frames even narrower—with the goal of making the panes and thus the building as a whole appear even more generous. The coverings here are no longer flat but instead consist of extruded aluminum profiles fabricated especially for the project in order to create a tauter image in every detail. And to give the building even more lightness, the panes of the corner windows have no corner profile and are only glued.

小公寓可以通过推拉门从街上进入。信箱在其玻璃中被执行为集成隔音的挡板。
使用比例为1:1的模型,可以解决Vestia对客厅升降/滑动门使用便利性的担忧,其面板重量超过250公斤。通过这个模型,三个潜在的住户对防风防雨和老年人的操作便利性都进行了测试。
The maisonette apartments can be accessed from the street by means of sliding doors. The mailboxes are executed in their glazing as integrated sound-insulated flaps.
It was possible to address Vestia’s concerns regarding the ease of using the lifting/sliding doors in the living rooms, whose panel weight exceeds 250 kilograms, using a model with a scale of 1:1. With this model, both the impermeability to wind and rain and the ease of operation for older individuals is tested by three potential residents.

总之,关于外墙,可以说在非常有限的成本框架内,对习惯标准的偏离只是由于采用了一致的、福特主义的设计方式,尽可能地减少偏差。这是基于这样的信念,即通过专注于少数细节,并在所有技术问题上批判性地实现这些细节,不仅有可能取得令人信服的结果,也有可能实现技术革新。对于荷兰的大规模住房项目来说,绝不可能确认具有许多个别适应性的 "大规模定制战略 "和 "福特主义的一致性 "之间任何所谓的经济等价物。有了连续重复的策略,也就更容易解决与之相关的风险增加和设计余地减少的问题,尤其是在这种大型项目的情况下,并以有说服力的论据对抗客户对风险的更大厌恶。
In summary, it is possible to say with respect to the façade that within the very limited cost framework, the deviations from customary standards were only possible as a result of a consistent, Fordist manner of design with as few deviations as possible. This is based on the belief that, by concentrating on just a few details and realizing them critically with respect to all technical questions, it is possible to achieve not only convincing results but also technical innovation as well. For mass housing projects in the Netherlands, it is by no means possible to confirm any purported economic equivalence between a “mass-customization strategy” with many individual adaptations and “Fordist consistency.” With the strategy of serial repetition, it is also much easier to address the increased risk and the reduced leeway in design that is connected with it, above all in the case of such large projects, and to counter clients’ greater aversion to risk with persuasive arguments.

此外,10号街区综合体有一个面向未来的能源概念:除了各种标准,如热回收、机械通风和带有防晒涂层的良好隔热外墙,这些都是Atelier Kempe Thill的惯例,所有的加热能源都是通过地热系统获得。
The Block 10 complex moreover has a future-oriented energy concept: in addition to various standards, such as heat recovery, mechanical ventilation, and well-insulated façades with sun-protection coating, which are customary for Atelier Kempe Thill, all of the heating energy is obtained by means of a geothermal system.










Architects: Atelier Kempe Thill
Area: 9132 m²
Year: 2014
Photographs: Ulrich Schwarz
Service Engineer Installations: ABT bv
Building Physics: Cauberg Huygen
General Contractor: Dura Vermeer Leidschendam bv
Urban Planner: KCAP
Structural Engineer: ABT bv
Quantity Surveyor: VGG Adviseurs, Capelle aan den IJssel
Supervisor:Ruurd Gietema, Frank Weijzen
Tender Documents:Adviesbureau Both
Client:Ceres, Vestia Den Haag Zuid-West
Site Area:7.471 m2
Design Team:André Kempe, Oliver Thill, Teun van der Meulen, Rafael Alencar Saraiva, Marcel Geerdink, Anja Mueller, Peter Graf, Stefanie Diwischek, Andris Rubenis, David van Eck
City:The Hague
Country:The Netherlands